*** IMPORTANT! APPLY TO INSPECT ***
Please apply via realestate.com.au - click on "APPLY" on the right-hand sidebar.
Once your application has been received and reviewed we shall contact you to arrange an inspection of the property.
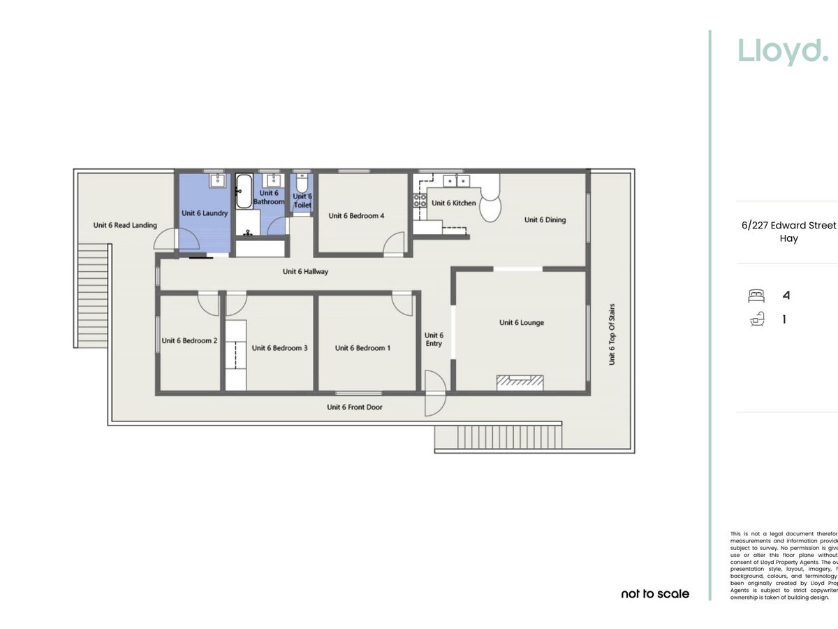
Presenting a delightful opportunity for families seeking comfort and convenience, this freshly painted four bedroom residence is now available for rent at 6/227 Edward Street, Hay. Boasting new blinds and a spacious kitchen that seamlessly flows into an adjacent dining area, this abode ensures daily routines are catered for with ease.
The family bathroom, complete with both shower and bath, is complemented by a separate toilet, providing practicality for a bustling household. Climate control is at your fingertips with split system heating and cooling, ensuring a pleasant atmosphere throughout the seasons.
Occupying the complete first level, the home affords a private balcony from which to enjoy captivating sunset views, adding a touch of serenity to your evenings. Education is conveniently just one block away with the primary school, while a brief stroll of two blocks takes you to the CBD and IGA, making shopping and city amenities readily accessible.
This property is perfectly poised to be your new sanctuary, combining ease of living with a prime location.
Features
Floor Plan
Floorplan 1










